Траверса ТМ №20, изготовление
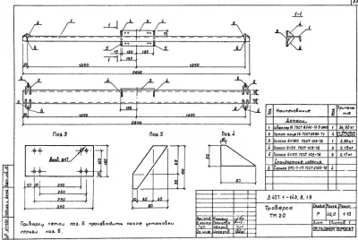
Металлические элементы изготавливаются из углеродистой стали для строительных конструкций и защищены от коррозии оцинкованием или окрашиванием в соответствии с требованиями СНиП 2.03.11-85. Траверсы ТМ выполнены в виде сварных конструкций из металлического уголка, полосы, круга.
Для крепления изоляторов на траверсах установлены серьги, штыри. Закрепление проводов к траверсам производится через изоляторы. Крепление самой траверсы к стойке опоры как круглого, так и квадратного сечения осуществляется с помощью хомута.
Доставка
Траверса ТМ №20 вы можете заказать в компании "Электроарматура" на выгодных условиях. В разделе Оголовья и накладки ОГ представлен большой ассортимент товаров. Доставка осуществляется по всей России. Подробную информацию уточняйте у наших специалистов по телефону
